Hi!
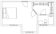
Were currently thinking about trying to make better use of our upstairs space and combine Bedroom 1 and Bedroom 2 in the below image to make one bedroom, ensuite and dressing room.
But I'm really struggling on how to make the most of the space to get the best from the shape.
Would you suggest keeping the lay out as is, en suite in the middle bedroom one side and dressing room the other, or split bedroom 2 length ways and have the dressing room an ensuite side by side etc
Thanks in advance for the help!
Jonathan
Craig ShukieOriginal Author
Related Discussions
How to make best use of understairs space in kitchen
Q
From multi-level garden to a better use of space
Q
Advice on upstairs layout
Q
How to best utilise space in impending loft conversion
Q
Jonathan