Hi everyone,
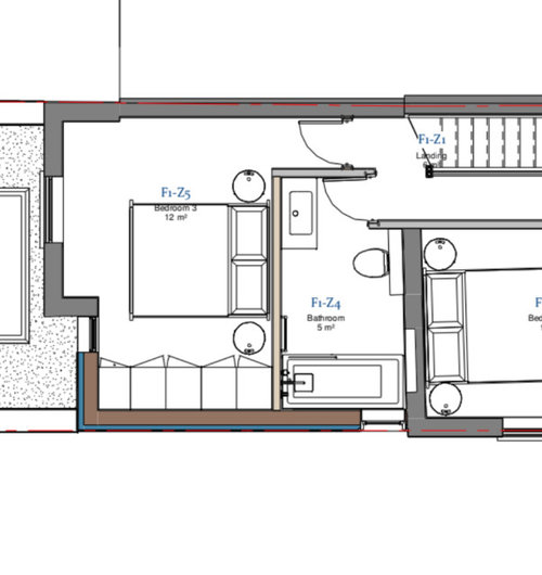
We're planning some renovation works and are struggling to decide what we should do with our upstairs bathroom. We're going to be extending the size of the existing bathroom and aren't sure whether we should keep it as a large bathroom or split it to create an ensuite and a shared bathroom with a separate toilet. We also have a utility on the ground floor that has a shower and toilet.
Splitting into two bathrooms is quite tight, meaning that would need to have a small bathtub (1300mm) but we think having one large bathroom may not be a great use of space. Having 2 bathrooms would make morning routines and guest visits easier (half our family is not in the UK).
We're leaning towards the split bathroom solution but wanted to get the community's opinion on whether we're missing something here, do you think the space in the split bathrooms option is sufficient?
Thanks for your help!
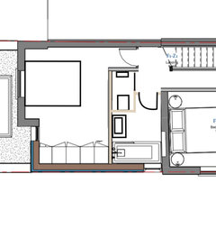
Single bathroom option (we would try and include a shower, maybe split-out toilet)
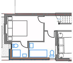
Bathroom + Ensuite
Jonathan
smac232
Related Discussions
Small bathroom and small ensuite or large bathroom?
Q
En-Suite bathroom or Study?
Q
Do you think? En-suite bathroom
Q
Finished En-suite & Main Bathroom
Q
CWD
AlixOriginal Author
CWD
Angie
Wumi