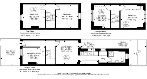
We have just purchased this mid terraced Victorian home. It has lots of potential and we are ideally looking to fully renovate the ground floor with a side extension. I hate how small the front room is so I am wondering if there are any ideas for layout to make this larger. Or is it not a problem and should our focus be the back of the house instead? Looking for any great inspo! Thanks in advance!
CWD
Oraanj Interior design
Related Discussions
Advice on ground floor renovation
Q
Do we stay in our home and renovate the ground floor or do we move?
Q
Layout help needed for renovating ground floor
Q
Ground floor renovation
Q