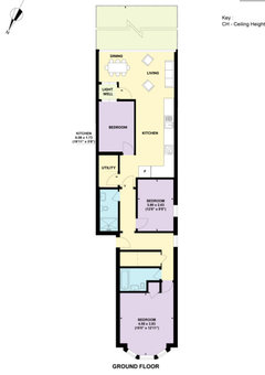
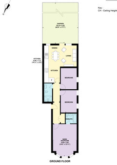
Help convert 2 bed garden flat to 3 bed
last month
Featured Answer
Sort by:Oldest
Comments (13)
- last month
Related Discussions
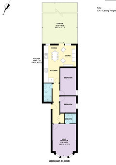
Room configuration 2 bed flat into 3 bed flat
Comments (16)I agree with Jonathan, you probably aren't going to get everything you want. My plan leaving the shower room and swapping the kitchen and bathroom is good. It leaves you a good sized bathroom for three beds, and a separate shower room. We all prefer our own plans and I like mine because i've used every inch possible. Plus, I only knocked down one small wall down between kitchen and living and put one wall up to make two bedrooms at the front. The master gets a nice big window with a private patio....nice feature. It also utilises the side entrance as a pantry gaining space in the kitchen. However, as Jonathan says either of the plans with no extension will leave an undersized living / kitchen / dining area. Thus an extension is necessary, but even that's pushing it. The budget just isn't going to stretch to all of the work in one go. I'm guessing you can just about do all the internals, which requires a new kitchen and bathroom, neither of which you could go mad on. Some of the rooms need better windows as you pointed out. It would still leave the undersized space at the rear, which would require an extension at some point, but the bulk of the work would be done. Either way, it's a very tight budget, it's an old house, and stuff crops up in those all the time that you don't expect. A healthy budget to achieve all, including the extension............with a contingency included for small disasters should be £60-80K...See MoreHelp with layout ideas for 3 bed flat
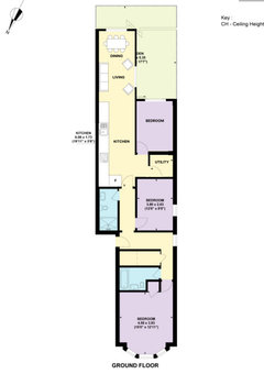
Comments (5)I would do three things: Firstly get a second opinion from another builder as clearly these flats can be altered so this one builders assessment that it can’t be done seems wrong. I would be very surprised if it is not possible to put a big opening in this wall if not take it out. Secondly I would introduce yourself to neighbours- particularly the people above- You might notice their layout and changes they made- it might be that your kitchen wall is not holding anything up. Thirdly I would contact the freeholders about your intended alterations as they may have requirements or advice that makes your decision making process easier. Best of luck...See MoreADVICE PLS converting a 2 bed flat into 3 bed
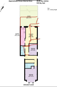
Comments (5)Hi Natalie, This is actually a hard one. I know this was posted some time ago, but in case you are still in a conundrum about this, a radical possibility is as follows: My intial idea was to open up your back area with the following extension (detailed below), so that your family could live facing your garden. But given that you are on a busy road (unless you want to reconsider using the front reception as a bedroom which you can test by pulling your mattress in there and sleeping in it for a couple of nights), this may do the trick, if you are willing to change your garden differently than you had intially considered. Here is how to get what you want - 3 bedrooms & open plan reception space to plan a kitchen with an island / breakfast bar, lounge & dining area. Knock all the walls through from your front reception room & your first bedroom area. This will give you one huge open-plan reception space to take advantage of and configure just the way you want to include kit - dining - living. Extend the hallway through the current kitchen - dining area to the back of the flat (and slightly beyond into the extension (detailed below). Out of the rest of the kitchen dining space, you can create another bedroom that can either retain the current window or have double doors opening up onto the garden. On the left side of the garden - all the way down the length of the garden - do a 1 room extension (13'6" long x 9' wide) with large windows or sliding doors onto the courtyard garden. This will give you the 3rd bedroom you desire and also with planning permission approvals or under permitted development (must find out what applies in your area), possibly give you enough space for a small ensuite shower room too. The extended hallway into the new left-side extension should be used to create access & a door into the courtyard garden. Your court-yard garden will still then be about 13'6" x 10' (rather than 19'9 x 10' as you suggested with a 1m back extension across the rear of your house) and you can still use your side return for light. Not doing the side extension will reduce the cost significantly - and as you know getting the 3rd bedroom out of the size of the side return extension was very difficult. If you do what to also do the side return extension, you can enlarge the kit - diner converted to a bedroom, and also add a small ensuite to that room behind the other bedroom (if you retain the courtyard area on the side from the current large bedroom, past the bathroom & 2nd bedroom windows, upto the fireplace). If you do decide to use the front reception as a bedroom: You can create a lovely open-plan living - dining - kitchen in the garden extension I suggested above & the current kitchen dining area - putting in all glass (sliding or concertina) in both areas facing your courtyard garden. You can configure your kitchen - diner in one side and the living area in the other. Both areas will have full light and exposure to the courtyard, and offer indoor-outdoor living when weather is nice and doors are all fully opened - giving you an L-shaped open plan living around your courtyard. Also if you do the side extension as well, this will extend this reception area even more across the back of the house, give you more options for skylights & allow you to add a small ensuite or w/c in the side return too. The rest of the blue-print of your home would remain the same & you would use your front reception room as a bedroom. Well, hope this helps and best of luck! Best wishes,...See MoreFloorplan Reconfiguration (2-3 bed garden flat)
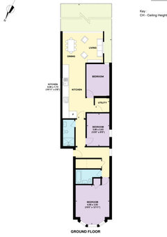
Comments (10)Hello Raphael, Bearing in mind I don't know your budget or what you intend to do with the property, or the extent of work you're willing to undertake.... I have had a bit of fun playing around with a new layout for the property on this Friday afternoon. It feels right to me to move the kitchen into the current reception room, and open it up to the lounge to create a more open plan feel. I've put banquette seating and a table in the window, but I don't know what the aspect is so you could just have additional soft seating in the bay. I've removed a chimney breast in the bedroom at the front of the house to create a wall. And have managed to get 3 doubles in there, the front room would fit a king. Only thing I don't like is that the dront foor and bedroom door are very close together, had i had a bit longer I'd have liked to have come up with a solution to this, but I gotta get the kids from nursery. Hope it gives some food for thought! Best, Kate Pickford Interior designer www.housebykate.com...See More- last monthlast modified: last month
- last month
- last month
- last month
- last month
- last month
- last month
- last monthlast modified: last month
- last month
























Devyra Atelier