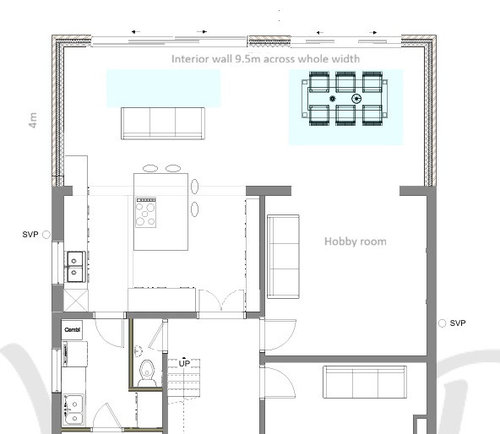
1930s extension - Glazing, Overheating and Layout
23 days ago
Featured Answer
Sort by:Oldest
Comments (9)
Related Discussions
New kitchen layout top please
Comments (2)Proposed floor plan with one layout idea... also thinking of creating a breakfast bar/worktop on the Middle pillar...See MoreHelp with kitchen layout please
Comments (4)Designing a room to suit you and to be safe can be quite tricky ! Maybe consider bringing in pro help ? You can go down the 'free plan route' with studios - or a new approach is to work with your own independent designer via email - then shop around with your personalised plans... I'm an independent concept planner - I design but don't sell any product other than the design itself - so I'm not biased towards any particular products or tied to a specific manufacturer... Drop me an email if you'd like to find out more ! ;-) Karen OnePlan...See MoreAt the beginning - ground floor extension!
Comments (17)Verena and MATH - I wish I had some nice pics for you, but I really is just a shell, still. Bare walls, exposed cabling, etc. BUT, I can share a few of my kitchen sketches if of interest... Pic 1 is the plan that went out the window this past weekend as we decided on stacked ovens next to the fridge. Pic 2 uses a magic corner to make the most of the corner space where the pantry would have been. In this scenario, upon reflection, I'd put the pull-out pins between the magic corner and the sink so that the first two units you see have the same door type (is that OCD?) The issue with this one is that I lose my 'dish pantry' from that corner, and I really wanted to be able to come in and make a cup of tea and a sandwich without having to go further than the sink. I also want DH to be able to set the table without having to come into the working aisle to get the dishes and cutlery. Perhaps I'm overthinking it, but... Pic 3 reinstates the dish drawers in that corner (although the actual base corner is not used). After doing this drawing I decided I'd have a small set of drawers for cling film, foil and dish towels between the dish drawers and the sink (again for continuity of the fronts), and put the bins in first position on the island (shown in the last pic). I'm a bit gutted to have lost the pantry, but I'm really pleased with the stacked ovens. I'm trying to convince myself that I can split pantry items between the corner upper cabinets (bread, jams, tea, coffee, snacks), and the island (tins, pasta, grains, sauces, spices, etc - the stuff for actual cooking). What do you think? Will it work? We have an appointment with a kitchen designer on the 27th - exciting! Pic 3 is kind of...See MoreHouse renovation & extension
Comments (16)When we renovated, we were always told, anything is possible, it depends on how much you want to spend! At a more basic level, if you want more space, you could convert the garage, although that may not give you the space you want, eg for a kitchen. You could do a single storey extension behind the garage for more kitchen space, or potentially extend above the garage (depending on footings) or remove the garage altogether & replace with a two-storey extension - obv all subject to planning. Internally, I’d say to remove the kitchen wall to open up that space - although obviously structural issues will need to be taken into account. I presume a new bathroom & kitchen would be needed, plus you’ve mentioned wiring & plumbing. I’m only going on costs from our renovation & there are others who would be able to offer much better advice but I’d say between £10k - 15k for plumbing & rewiring. Kitchens & bathrooms depend on level of fittings & finish you want. Redecoration appears to be straightforward from the photos but take into account flooring / possible new ceilings / reskimming or other plastering work. As I said before, if there’s no insulation, I think this really needs to be sorted - interior or exterior wall insulation can be added (presume it’s single block wall in a 30s property?). Underfloor insulation can be added as well as obv loft insulation. As a real ball- park figure, with a garage conversion or basic single storey extension, I’d say costs would be at least £100k, but I’m basing that on our renovation (we did a lot of work ourselves & in a very diff type of property). You might find better advice by reposting & mentioning ‘1930s renovation’ in the title. There are people on here who have done similar but not noticed this post. Hope that helps a bit. Good luck with it all!...See More- 12 days ago
- 12 days agolast modified: 12 days ago
- 11 days ago
- 11 days agolast modified: 11 days ago
- 11 days ago





Isla Cherry