Avant/Après : Un rez-de-chaussée fonctionnel devient fabuleux
Les tons chauds, le bois et des trésors du milieu du siècle transforment la cuisine et les zones de vie de cette maison
Si l’on s’en tient uniquement à l’espace et à l’emplacement, cette maison située dans l’East Sussex aurait obtenu un 10 sur 10. Elle a de bonnes fondations et se trouve sur un terrain magnifique avec vue sur la mer, dans un village situé à la limite des South Downs. À l’intérieur, cependant, l’aspect légèrement industriel du rez-de-chaussée ne convenait pas aux nouveaux propriétaires, et le plan ouvert, bien que très spacieux, manquait de zones bien définies.
Susie Pfeiffer, directrice de Pfeiffer Design, et son équipe ont donc été chargées de concevoir une nouvelle cuisine et de reconfigurer l’espace de vie attenant. L’ajout de chaleur, de texture et de couleur était une priorité, tout en dégageant de la place pour les meubles, les vases et les œuvres d’art modernes du milieu du siècle que les propriétaires avaient collectionnés.
« Notre objectif était de créer une maison ambitieuse, luxueuse et créative, mais aussi fonctionnelle », explique Susie. « Nous voulions utiliser les pièces disponibles de manière efficace, tout en ajoutant la personnalité nécessaire sans compromettre la sensation d’ouverture, de lumière et d’aération de l’espace ».
Susie Pfeiffer, directrice de Pfeiffer Design, et son équipe ont donc été chargées de concevoir une nouvelle cuisine et de reconfigurer l’espace de vie attenant. L’ajout de chaleur, de texture et de couleur était une priorité, tout en dégageant de la place pour les meubles, les vases et les œuvres d’art modernes du milieu du siècle que les propriétaires avaient collectionnés.
« Notre objectif était de créer une maison ambitieuse, luxueuse et créative, mais aussi fonctionnelle », explique Susie. « Nous voulions utiliser les pièces disponibles de manière efficace, tout en ajoutant la personnalité nécessaire sans compromettre la sensation d’ouverture, de lumière et d’aération de l’espace ».
La propriétaire aime le bois naturel et les tons terreux, en particulier le vert. « C’est la palette de couleurs et de matériaux qu’elle souhaitait pour la cuisine », explique Susie. « Nous nous sommes ensuite inspirés de l’environnement de la maison, de la vue sur la mer et de l’ambiance balnéaire, pour déterminer le ton et le bois appropriés. »
Poignées en laiton brossé : Buster & Punch.
Poignées en laiton brossé : Buster & Punch.
Les placards ont été fabriqués sur mesure en chêne avec une teinte fumée, et l’équipe de menuiserie a également créé les panneaux muraux à lattes.
« Nous intégrons la notion de développement durable dans chaque projet », explique Susie. « L’utilisation de matériaux d’origine locale, en particulier le bois, était un aspect important pour nous et pour les propriétaires. En outre, nous avons veillé à ce que tous nos artisans et fabricants sur mesure soient locaux afin de réduire l’empreinte carbone ».
La porte située à côté du lambris mène à la chambre d’amis et à la salle de bains. Une buanderie pratique se trouve également derrière la porte vitrée. La cave à vin du propriétaire est de l’autre côté, et est soigneusement intégrée à la menuiserie.
« Nous intégrons la notion de développement durable dans chaque projet », explique Susie. « L’utilisation de matériaux d’origine locale, en particulier le bois, était un aspect important pour nous et pour les propriétaires. En outre, nous avons veillé à ce que tous nos artisans et fabricants sur mesure soient locaux afin de réduire l’empreinte carbone ».
La porte située à côté du lambris mène à la chambre d’amis et à la salle de bains. Une buanderie pratique se trouve également derrière la porte vitrée. La cave à vin du propriétaire est de l’autre côté, et est soigneusement intégrée à la menuiserie.
Avant. Voici la pièce avant le réaménagement, en regardant vers l’entrée. L’ancienne cuisine était en parfait état et toutes les personnes impliquées ont tenu à ce qu’elle ne soit pas gâchée et que l’ensemble soit recyclé ou vendu, y compris les appareils électroménagers.
En fait, la majeure partie des éléments – placards, plans de travail et lave-vaisselle – on été confiés à l’une des collaboratrices de Pfeiffer, qui était en train de réaménager sa propre cuisine.
En fait, la majeure partie des éléments – placards, plans de travail et lave-vaisselle – on été confiés à l’une des collaboratrices de Pfeiffer, qui était en train de réaménager sa propre cuisine.
Une autre vue « avant », donnant sur le jardin.
Après. Le nouvel îlot est plus grand que celui d’origine, avec une dimension de 275×120 centimètres. Cela permet de remplir le plan et d’offrir un grand espace de rangement et de travail.
Avec le vert et le bois, le laiton brossé est un autre élément clé de la cuisine, apparaissant sur la base du bar du petit-déjeuner, ainsi que sur les luminaires, les robinets, les poignées et les supports d’étagères.
Suspensions : Bert Frank.
Avec le vert et le bois, le laiton brossé est un autre élément clé de la cuisine, apparaissant sur la base du bar du petit-déjeuner, ainsi que sur les luminaires, les robinets, les poignées et les supports d’étagères.
Suspensions : Bert Frank.
La propriétaire possédait quelques pièces précieuses de mobilier du milieu du siècle qu’elle souhaitait intégrer dans l’espace du rez-de-chaussée, notamment cette armoire. « C’est l’une des premières pièces qu’elle nous a montrées lors de notre première rencontre », raconte Susie. Sa forme douce et sa couleur chaude ont inspiré l’aménagement.
Plus d’idées pour aménager une cuisine sur Houzz
Plus d’idées pour aménager une cuisine sur Houzz
Une grande baie vitrée donne sur le hall d’entrée à l’avant de la maison. En dessous se trouve un bar étroit pour le petit déjeuner, conçu aussi comme un espace de travail pour la fille des propriétaires.
La même surface composite – le Dekton – a été utilisée pour les plans de travail et la crédence afin d’obtenir une finition homogène. « Il ressemble à de la pierre naturelle et il est pratique, ce qui le rend idéal pour cette cuisine familiale très utilisée », explique Susie.
La même surface composite – le Dekton – a été utilisée pour les plans de travail et la crédence afin d’obtenir une finition homogène. « Il ressemble à de la pierre naturelle et il est pratique, ce qui le rend idéal pour cette cuisine familiale très utilisée », explique Susie.
Avant. Voici un plan montrant l’agencement original du rez-de-chaussée. On peut voir que le coin salon et le coin cuisine ne formaient qu’une seule et même grande pièce. « L’ensemble du rez-de-chaussée paraissait clairsemé, sans aucune fluidité entre les espaces », explique Susie.
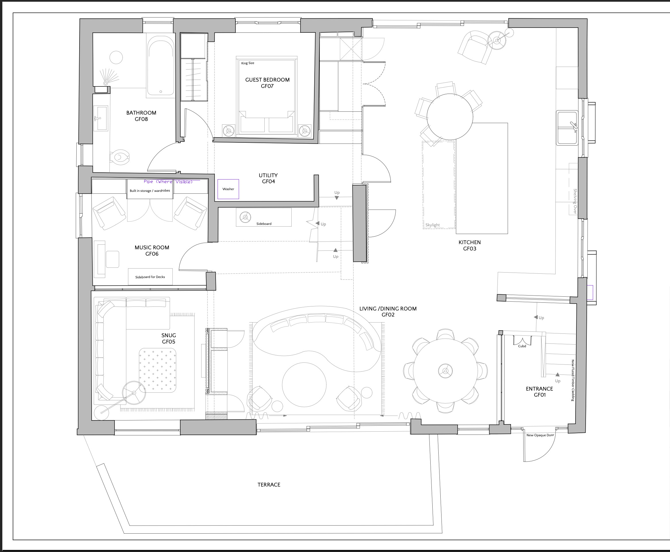
Après. Voici le plan du rez-de-chaussée réaménagé, montrant comment il a été divisé en zones. « Nous avons ajouté un faux mur pour créer un salon clair et formel et un petit coin plus discret », explique Susie.
Il comprend également une salle à manger (non photographiée). « Nous avons donné à la propriétaire des options sur la façon dont elle pouvait aménager les espaces », ajoute-t-elle. « Elle a opté pour un agencement dans lequel la salle à manger et la cuisine se parlent, tandis que le salon et le coin détente se présentent plus comme une entité séparée, tout en faisant partie de l’ensemble. »
Il comprend également une salle à manger (non photographiée). « Nous avons donné à la propriétaire des options sur la façon dont elle pouvait aménager les espaces », ajoute-t-elle. « Elle a opté pour un agencement dans lequel la salle à manger et la cuisine se parlent, tandis que le salon et le coin détente se présentent plus comme une entité séparée, tout en faisant partie de l’ensemble. »
Le propriétaire souhaitait incorporer un garde-manger, Susie en a donc créé un dans ce qui était un couloir menant aux chambres d’amis. « Il s’agissait d’une partie supplémentaire de la cuisine qui donnait l’impression d’être un espace mort », explique-t-elle.
Un nouveau mur sépare la cuisine de la chambre située à l’arrière, et le garde-manger se trouve dans l’alcôve laissée libre. « Nous avons ensuite ajouté une porte coulissante avec un vitrage opaque qui permet de cacher partiellement le désordre, tout en créant un garde-manger esthétiquement agréable. »
Un nouveau mur sépare la cuisine de la chambre située à l’arrière, et le garde-manger se trouve dans l’alcôve laissée libre. « Nous avons ensuite ajouté une porte coulissante avec un vitrage opaque qui permet de cacher partiellement le désordre, tout en créant un garde-manger esthétiquement agréable. »
Le garde-manger offre assez de place pour les conserves de légumes, des étagères pour les beaux bocaux et de l’espace sur le plan de travail et en dessous pour ranger les gros appareils électroménagers.
Carrelage : Solus Ceramics.
Carrelage : Solus Ceramics.
Les armoires en chêne et le plan de travail en Dekton sont identiques à ceux de la cuisine.
Les étagères, visibles lorsque la porte du garde-manger est ouverte, donnent du caractère à l’espace cuisine.
Need a pro for your kitchen remodeling project?
Let Houzz find the best pros for you
Let Houzz find the best pros for you
Pour séparer le vaste espace de vie, Susie a conçu une cloison qui abrite une cheminée et comporte des recoins et des étagères où exposer les pièces des propriétaires datant du milieu du siècle dernier.
Le foyer est un autre choix durable. « Il fonctionne au bioéthanol, un combustible renouvelable qui ne produit pas d’émissions nocives par rapport à un brûleur à gaz et qui est plus efficace pour chauffer qu’un feu électrique », explique Susie.
Le foyer est un autre choix durable. « Il fonctionne au bioéthanol, un combustible renouvelable qui ne produit pas d’émissions nocives par rapport à un brûleur à gaz et qui est plus efficace pour chauffer qu’un feu électrique », explique Susie.
Toutes les pièces situées à l’avant de la maison sont orientées vers le sud et baignées de lumière. Le refuge a été décoré avec des couleurs sombres et des textures riches pour apparaître plus confortable, tandis que l’espace de vie est plus clair.
Une télévision est installée sur le côté cosy du mur de séparation, qui est revêtu des mêmes panneaux de lattes de chêne que ceux de la cuisine. « Cela ajoute une valeur esthétique, mais permet également d’atténuer le bruit entre les deux espaces, car il y avait beaucoup d’écho ici à l’origine », explique Susie.
C’est cette lampe, l’une des pièces en verre de Murano des propriétaires, qui a inspiré la palette de couleurs.
D’autres vases en verre de Murano sont alignés sur le rebord de la fenêtre de l’alcôve, leurs tons bleus et ambrés s’intégrant aux couleurs de la pièce. Cette pièce, dont la fonction est clairement de servir de lieu de détente pour tous, est l’un des éléments dont les propriétaires sont le plus ravis.
« Ces aspects pratiques et spatiaux du projet ont vraiment eu un impact sur la vie de cette famille », explique Susie. « Aujourd’hui, les zones ont une fonction claire et les espaces morts ont été optimisés. »
En outre, la passion de la propriétaire pour le design du milieu du siècle est pleinement visible et ses collections ont de la place pour briller. « Elle a estimé que le design final reflétait son amour pour cette période et qu’il apportait à la fois un environnement naturel et de la chaleur à cette maison. »
Papier peint : House of Hackney.
ET VOUS ?
Qu’est-ce qui vous plaît dans cette cuisine et cet espace de vie élégants ? Faites-nous part de vos impressions dans les commentaires.
« Ces aspects pratiques et spatiaux du projet ont vraiment eu un impact sur la vie de cette famille », explique Susie. « Aujourd’hui, les zones ont une fonction claire et les espaces morts ont été optimisés. »
En outre, la passion de la propriétaire pour le design du milieu du siècle est pleinement visible et ses collections ont de la place pour briller. « Elle a estimé que le design final reflétait son amour pour cette période et qu’il apportait à la fois un environnement naturel et de la chaleur à cette maison. »
Papier peint : House of Hackney.
ET VOUS ?
Qu’est-ce qui vous plaît dans cette cuisine et cet espace de vie élégants ? Faites-nous part de vos impressions dans les commentaires.





















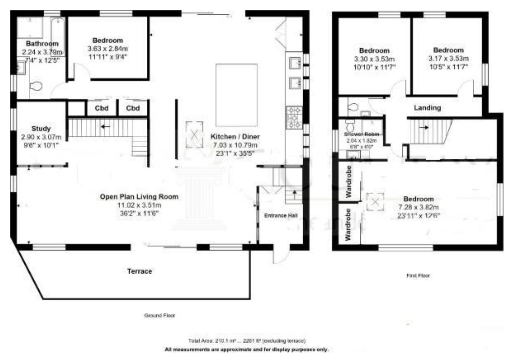
Qui vit ici ? Un couple et sa jeune fille
Emplacement : Rottingdean, East Sussex
Bâtiment : Une maison individuelle nouvellement construite
Taille : Trois chambres et deux salles de bains
Architecte d’intérieur : Susie Pfeiffer et son équipe de Pfeiffer Design
Menuiseries : Wood Works
Photos : Bee Holmes Photography
La cuisine a été entièrement repensée et fabriquée sur mesure. « Cela nous a donné l’occasion de créer quelque chose d’extraordinaire », explique Susie. Elle comprend un grand îlot avec un bar à petit déjeuner à l’une de ses extrémités, où les amis et la famille peuvent se réunir. « Nous l’avons placée du côté jardin de la pièce, afin que tous ceux qui sont assis ici puissent profiter de l’ambiance intérieur-extérieur de la maison et de la vue imprenable », explique-t-elle.
Les formes arrondies créent des lignes douces et organiques dans la cuisine, qui paraissait auparavant plutôt anguleuse. Le plan de travail du bar du petit-déjeuner est fabriqué dans le même chêne que les placards. Il est recouvert de carrelage et d’une base en laiton.
Trouvez un architecte d’intérieur près de chez vous sur Houzz