Houzz Tour: Repurposing a Bright Loggia Opens Up a City Flat
Making a sunny loggia, with its beautiful ceiling and big window, part of the living space has transformed this home
This flat’s owners had a long wish list and knew this didn’t make it easy for the architects at BRFS architecture studio, who they contacted through Houzz. The couple’s main goal was a spacious, multipurpose area that could be used for both working from home and spending time with family, for less than €50,000 (around £42,152).
While this may seem like a generous budget, a lot of work had to be done to get the space to align with the owners’ wishes. The flat was originally old and shabby, with a floor plan that didn’t fit their lifestyle. “The previous owners hadn’t made any major updates to the place in more than 50 years,” says Genís Bargués, lead architect on this project. “Not only was the original floor plan still in place, but the finishes were also outdated and neglected.”
While this may seem like a generous budget, a lot of work had to be done to get the space to align with the owners’ wishes. The flat was originally old and shabby, with a floor plan that didn’t fit their lifestyle. “The previous owners hadn’t made any major updates to the place in more than 50 years,” says Genís Bargués, lead architect on this project. “Not only was the original floor plan still in place, but the finishes were also outdated and neglected.”
“The colour of the woods used in the loggia was key. The light oak of the floor brightens up the space, while the oak window frames are older and darker, plus there’s the accent provided by the oak lamp. These tones combine to add serenity to a unique space,” Genís says. “The traditional Catalan vaulted ceiling is original; we gave it a matt protective varnish for a natural look.”
Other details, such as the olive green of the chairs and the white metal beams, create a space that embodies the “light and soul of the Mediterranean”.
Find reviewed architects in your area in on Houzz.
Other details, such as the olive green of the chairs and the white metal beams, create a space that embodies the “light and soul of the Mediterranean”.
Find reviewed architects in your area in on Houzz.
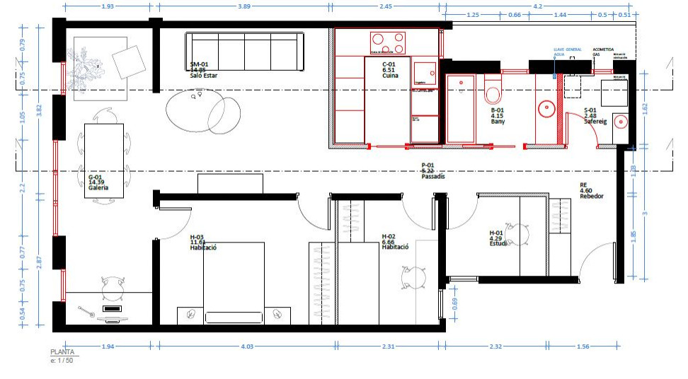
The floor plan shows the layout of the flat after the renovation. Only half of the property was renovated, while the rest was left unchanged. There are now two bathrooms where the kitchen used to be, while the latter is now adjacent to the living-dining room.
Need a pro for your home renovation project?
Let Houzz find the best pros for you
Let Houzz find the best pros for you
The style of the flat is modern with a Nordic touch. “It’s serene, elegant and young,” Genís says.
The team helped the owners select the furniture pieces from the design studio. The Ginger lamp from Marset is a focal point of the room, as it’s located in the centre and is visible from the entrance.
“The dining table, with its concrete-like finish, contrasts with the wood and, like the rugs, is key to bringing interest to the living room and loggia,” Genís says.
The team helped the owners select the furniture pieces from the design studio. The Ginger lamp from Marset is a focal point of the room, as it’s located in the centre and is visible from the entrance.
“The dining table, with its concrete-like finish, contrasts with the wood and, like the rugs, is key to bringing interest to the living room and loggia,” Genís says.
The traditional Catalan vaulted ceiling and the wooden joinery of the loggia windows were restored to look similar to the originals.
The owners like how bright their flat is after the renovation and enjoy being able use the same space for multiple functions – as a living room, kitchen and loggia. It’s a warm and welcoming space for them and their guests.
The owners like how bright their flat is after the renovation and enjoy being able use the same space for multiple functions – as a living room, kitchen and loggia. It’s a warm and welcoming space for them and their guests.
For Genís, the most difficult decision of the renovation was whether the kitchen should be open or closed. “We considered more than four options for the location of the kitchen,” he says.
“In the end, we opted for a semi-open kitchen with a low, 1.2m dividing wall that allows us to hide mess and clutter from the living room,” he says. The clear glass window that separates the kitchen from the living room cost €1,300 (around £1,100).
“In the end, we opted for a semi-open kitchen with a low, 1.2m dividing wall that allows us to hide mess and clutter from the living room,” he says. The clear glass window that separates the kitchen from the living room cost €1,300 (around £1,100).
“We wanted to use monochrome tones in the kitchen and use the taps, small window (see previous photo) and appliances to provide contrast,” Genís says. “It was difficult to find a material that would allow us to stick with the monochrome colour scheme while also creating minimalist lines and staying within budget.” The kitchen came out to a total of €5,298.75 (around £4,488).
“I really like the porcelain tiles in the master bathroom, because it has a very contemporary look and feel,” Genís says. “Larger tiles measuring 60cm x 60cm were used to help create the illusion of a bigger space. The white ceiling, moreover, makes the space appear taller.
The furniture is made of faux wood (melamine) from Edger, and cost €890 (around £753).
Tell us…
What do you like about this renovation? Share your thoughts in the Comments.
The furniture is made of faux wood (melamine) from Edger, and cost €890 (around £753).
Tell us…
What do you like about this renovation? Share your thoughts in the Comments.
















Who lives here? A family with a two-year-old son
Location Barcelona, Spain
Size 86 sq m
Architect Genís Bargués of BRFS
Budget €50,000 (around £42,152)
The first thing that stands out in the living room is the large, open space and the light colour of the oak floor. “The new floor helps to create uniform lighting and also provides a very Mediterranean chiaroscuro feeling,” Genís says.
Before the renovation, the loggia contained the bathroom, but moving it meant this lovely light space could merge with and enhance the living area. The windows are made of natural wood and add personality to the room.
“The loggia is my favourite space in the home because it emphasises domestic life: meals, dinners, breakfasts in the sun, children’s games, and so on,” Genís says.