Houzz Tours
House Tours
Houzz Tour: The Amazing Creation of a Cosy Home in Just 17.5 sq m
Before and after photos show how this tiny attic has been transformed into a cheerful, vintage-inspired home
The owner of this Parisian apartment had been renting near the Bastille opera house while looking to buy his first flat in the surrounding area. When he finally found this dilapidated rooftop studio, he was careful to work out a realistic budget for the work needed to turn the converted attic into a fully-functioning, cosy home.
Searching Houzz, he found the perfect professional to help him in Alicia Oustry, an interior designer renowned for her expertise in optimising small spaces with severe constraints. Check out her genius design.
To see more great projects where the homeowner found their professional via Houzz, take a look at our Born on Houzz series.
Searching Houzz, he found the perfect professional to help him in Alicia Oustry, an interior designer renowned for her expertise in optimising small spaces with severe constraints. Check out her genius design.
To see more great projects where the homeowner found their professional via Houzz, take a look at our Born on Houzz series.
This floor plan before works. The attic measured approximately 6.5m x 3.5m, with a fairly steep roof slope running the length of it, reducing its usable surface area from 22.75 sq m to 17.5 sq m.
The entrance door can be seen bottom left. Opposite, a rudimentary kitchen led to a bathroom containing a shower and basin, but no toilet. To the right of the entrance, a corridor led to a single room – a bedroom with a single bed, fireplace and desk.
The entrance door can be seen bottom left. Opposite, a rudimentary kitchen led to a bathroom containing a shower and basin, but no toilet. To the right of the entrance, a corridor led to a single room – a bedroom with a single bed, fireplace and desk.
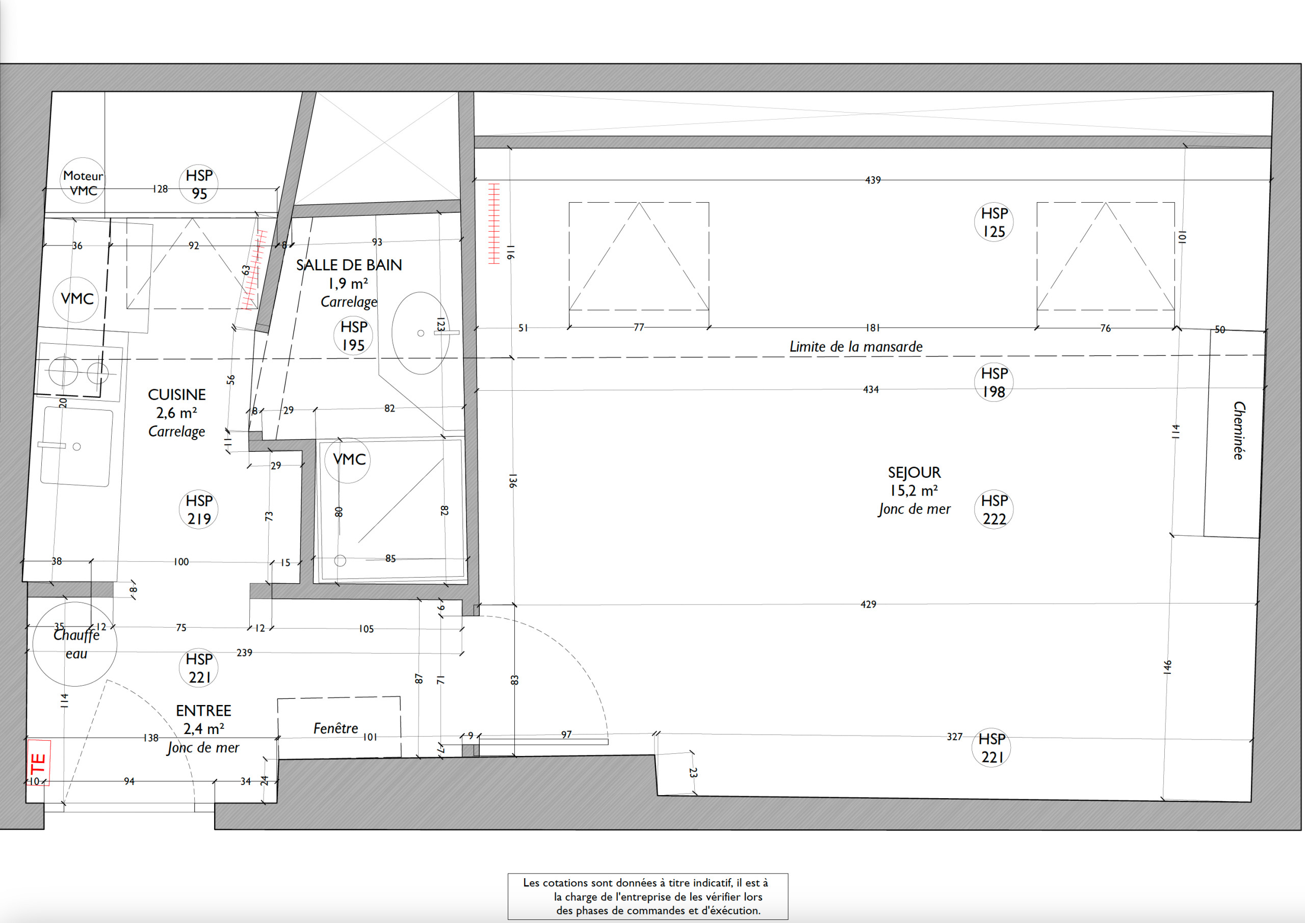
The new floor plan shows a much smarter use of space.
Alicia is used to working with small spaces like this, so she wasn’t daunted by the prospect. While some professionals might shy away from this type of project, she feels she’s been given a mission and, what’s more, finds it fun.
“Tiny spaces are very difficult to deal with, but it really challenges us, because the mission is always the same: to fit the floor plan for a large flat into a handkerchief. That forces us to do some extreme gymnastics, which is very stimulating,” she says.
However, the space did have some redeeming features, namely “three beautiful, brand-new Velux windows”, and she appreciated that the owner had a very clear design style. “He collected old telephones and loved the ‘pop years’ [1956 to 1968]. He immediately wanted dark wood and electric blue,” recalls Alicia, who compensated for the narrowness of the space by going bold with the decor.
Find an interior designer near you on Houzz.
Alicia is used to working with small spaces like this, so she wasn’t daunted by the prospect. While some professionals might shy away from this type of project, she feels she’s been given a mission and, what’s more, finds it fun.
“Tiny spaces are very difficult to deal with, but it really challenges us, because the mission is always the same: to fit the floor plan for a large flat into a handkerchief. That forces us to do some extreme gymnastics, which is very stimulating,” she says.
However, the space did have some redeeming features, namely “three beautiful, brand-new Velux windows”, and she appreciated that the owner had a very clear design style. “He collected old telephones and loved the ‘pop years’ [1956 to 1968]. He immediately wanted dark wood and electric blue,” recalls Alicia, who compensated for the narrowness of the space by going bold with the decor.
Find an interior designer near you on Houzz.
The new floor plan was dictated by two major constraints – the drains being the main one. The only drainpipe was at the level of the shower on the plan above, but not on the floor, in the ceiling! That’s why there was already a pump under the kitchen sink.
Alicia spoke to the neighbours next door and downstairs in search of a column, but to no avail: the entire wastewater network, including the toilet, had to be evacuated through this pipe in the ceiling. “Fortunately, the condominium accepted Sanibroyeurs [macerators], the only toilets that could be connected to a conventional pipe, which solved the problem,” Alicia says.
The other constraint was the need for storage – important in a flat that was not intended to be a pied-à-terre, but a home for everyday living. “That’s why we decided to position the technical equipment [such as the oven and fridge-freezer] along the full-height side, and move the sofa and bed under the slope to save space,” Alicia says.
Alicia spoke to the neighbours next door and downstairs in search of a column, but to no avail: the entire wastewater network, including the toilet, had to be evacuated through this pipe in the ceiling. “Fortunately, the condominium accepted Sanibroyeurs [macerators], the only toilets that could be connected to a conventional pipe, which solved the problem,” Alicia says.
The other constraint was the need for storage – important in a flat that was not intended to be a pied-à-terre, but a home for everyday living. “That’s why we decided to position the technical equipment [such as the oven and fridge-freezer] along the full-height side, and move the sofa and bed under the slope to save space,” Alicia says.
Now, in order to define it, the small entrance has been painted deep blue, as the owner is “crazy about blue”. Opposite the front door is a cupboard for storing coats and shoes. A full-height mirror has been fixed to the side of the cupboard to reflect the living room, making the small space seem bigger.
On the other side of the rounded wall is the shower and the rest of the bathroom. In front of that is the kitchen, running along either side of the main walkway, which then gives way to a living area.
On the other side of the rounded wall is the shower and the rest of the bathroom. In front of that is the kitchen, running along either side of the main walkway, which then gives way to a living area.
The technical elements have remained at the entrance in the new design. The electrical panel has been completely rebuilt and, together with the meter, is hidden behind the indigo blue casing.
An extra-flat, 80 litre tank, which is easier to store than the old one, occupies the right-hand side of the cloakroom. “Underneath, we’ve placed the lift pump needed to evacuate the waste water,” Alicia says.
An extra-flat, 80 litre tank, which is easier to store than the old one, occupies the right-hand side of the cloakroom. “Underneath, we’ve placed the lift pump needed to evacuate the waste water,” Alicia says.
Part of the new kitchen is located in the former entrance hallway, and part is located in the former bathroom. “We had to split the kitchen for drainage reasons,” Alicia says.
Given it’s right next to the living area, Alicia wanted to make the kitchen ‘disappear’ as much as possible and suggested pale cabinet colours “as if they were part of the walls”.
The light colours, glossy textured splashback and brass cabinet handles help to reflect as much daylight as possible from the Velux window opposite. The wooden worktop and warm grey doors, meanwhile, add gentle contrast.
As both an aesthetic and practical detail, the walnut laminate shelf, which matches the worktop, neatly tops off the splashback and highlights the kitchen area, while providing useful storage. It’s the kind of detail Alicia loves.
Given it’s right next to the living area, Alicia wanted to make the kitchen ‘disappear’ as much as possible and suggested pale cabinet colours “as if they were part of the walls”.
The light colours, glossy textured splashback and brass cabinet handles help to reflect as much daylight as possible from the Velux window opposite. The wooden worktop and warm grey doors, meanwhile, add gentle contrast.
As both an aesthetic and practical detail, the walnut laminate shelf, which matches the worktop, neatly tops off the splashback and highlights the kitchen area, while providing useful storage. It’s the kind of detail Alicia loves.
The tall unit hides a fridge-freezer and a microwave, while the base units contain an oven, induction hob, storage and a pantry unit.
Alicia added curved shelves at the far side of the fridge-freezer to create a smooth transition into the bedroom.
Alicia added curved shelves at the far side of the fridge-freezer to create a smooth transition into the bedroom.
Need a pro for your home remodeling project?
Let Houzz find the best pros for you
Let Houzz find the best pros for you
Opposite the oven, on the other side of the corridor, is the sink unit. It hides the bins and a 45cm dishwasher underneath. Behind the sink, open storage units in the sloping ceiling store small appliances, such as a toaster and espresso machine.
Extending from the sink unit is a fold-up dining surface. Made to measure in walnut laminate in the vintage style favoured by the owner, it can also be used as a workspace.
The two wooden and wicker chairs fold up, so the area can be completely packed away if the owner is entertaining. “He stores the chairs under the bed,” Alicia says.
The two wooden and wicker chairs fold up, so the area can be completely packed away if the owner is entertaining. “He stores the chairs under the bed,” Alicia says.
In the new design, all the walls were occupied and there was no room left for radiators. “We used electric underfloor heating instead,” Alicia says. “It’s an efficient and very practical solution, with its centralised thermostat. We added an electric towel rail in the bathroom, too.”
To mark out the flat’s relaxation zone, Alicia suggested contrasting the indigo blue with an invigorating sunny yellow that takes advantage of the abundant light from the roof windows.
A Samsung Frame TV, which can show artworks when not in use, has been hung above a small closed storage area.
A Samsung Frame TV, which can show artworks when not in use, has been hung above a small closed storage area.
The back of the old bedroom has now been given over to the sleeping area, and the fireplace has been removed to save space. The sofa, in yellow velvet to work with the bold wall opposite, sits against the wall of the sleeping area. It’s a sofa-bed, making it possible for the owner to have guests to stay.
The location of the bedroom partition was determined by the size of the wardrobes. “To keep costs down, we designed all the joinery using standard Ikea pedestals,” Alicia says.
For a bespoke look, she painted some of the storage doors, along with the walls, in the owner’s favourite blue. “We often paint the lower part of the walls in a colour and the upper part in white, but here we’ve reversed this to reinforce the cocoon effect,” she says.
There’s a 140cm x 190cm double bed in here, with 60cm of circulation space.
For a bespoke look, she painted some of the storage doors, along with the walls, in the owner’s favourite blue. “We often paint the lower part of the walls in a colour and the upper part in white, but here we’ve reversed this to reinforce the cocoon effect,” she says.
There’s a 140cm x 190cm double bed in here, with 60cm of circulation space.
To boost light and help the bedroom feel more spacious, Alicia recommended cutting a decorative window into the partition wall, enhancing both the bedroom and the living room.
She particularly likes to design graphic windows, which in this case was made by a craftsman with a pale oak frame and Securit glazing. Her inspiration here is “vintage, somewhere between Art Deco and the pop years”.
She particularly likes to design graphic windows, which in this case was made by a craftsman with a pale oak frame and Securit glazing. Her inspiration here is “vintage, somewhere between Art Deco and the pop years”.
There is a common design thread running through the layout. “The curves in the window echo the different curves we designed to make the circulation flow more smoothly and create beautiful transitions between zones, such as the shower in the entrance hall and the shelves at the end of the kitchen,” Alicia says.
We can also see the zoning of the spaces through the use of colours and materials: the blue bedroom announced by the open shelves in the living room; the yellow living room with its herringbone parquet (actually clip-in laminate tiles), and the bright kitchen linked to the entrance hall via black-and-white floor tiles (Leroy Merlin).
We can also see the zoning of the spaces through the use of colours and materials: the blue bedroom announced by the open shelves in the living room; the yellow living room with its herringbone parquet (actually clip-in laminate tiles), and the bright kitchen linked to the entrance hall via black-and-white floor tiles (Leroy Merlin).
The new bathroom combines green ceramic tiles and walnut laminate. Installing a toilet in this bathroom instantly made the flat more practical. “Before, you had to use a communal toilet, out to the end of the corridor and past another flat,” Alicia says.
Another source of satisfaction for the owner was the integration of a washer-dryer in the left-hand side of the custom-made vanity unit.
Another source of satisfaction for the owner was the integration of a washer-dryer in the left-hand side of the custom-made vanity unit.
If the photo of the vanity unit is somewhat confusing, reflecting the entrance and the kitchen, it’s because Alicia had the sloping wall covered with mirrors framing the vanity unit. “It was difficult to put a mirror above the washbasin, which was set into the slope, so that’s where the idea came from,” she explains.
The shower was positioned at the highest part of the bathroom, with a nicely rounded edge at the entrance (seen in the first photo). The result is a comfortable 90cm × 68cm shower. Alicia even included a niche for products, adorned with the same hexagonal pattern as on the floor.
Here’s the floor plan for the newly renovated home.
For her excellent service, the owner awarded Alicia 5 stars on her Houzz profile and a review that speaks for itself: “It’s a shame we can’t give more stars, because Alicia’s service is so excellent. Everything was clear from the outset. Alicia is creative and turns small spaces into places that are easy to live in. The work was carried out to a high standard, with regular reports. And there were no surprises on the initial budget… In short, everything was perfect.”
Tell us…
What do you like best about Alicia’s renovation of this small flat? Share your thoughts in the Comments.
For her excellent service, the owner awarded Alicia 5 stars on her Houzz profile and a review that speaks for itself: “It’s a shame we can’t give more stars, because Alicia’s service is so excellent. Everything was clear from the outset. Alicia is creative and turns small spaces into places that are easy to live in. The work was carried out to a high standard, with regular reports. And there were no surprises on the initial budget… In short, everything was perfect.”
Tell us…
What do you like best about Alicia’s renovation of this small flat? Share your thoughts in the Comments.


































Who lives here? A man in his thirties
Location Boulevard Beaumarchais, Paris, France
Size 17.5 sq m
Designer Alicia Oustry of Ameo Concept
Project year 2024 (2 months)
Budget €48,000 (around £40,000) including:
€40,500 (around £34,000) for works and €7,500 (around £6,000) for furniture and decoration
Photos by Cassandre Favaro