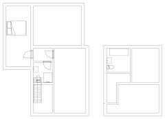
I live in a 1970s dormer house with the main bathroom downstairs, and I’m looking for ideas on how to add a bathroom upstairs while keeping three functional bedrooms.
- We have a cupboard in Bedroom 1, but it’s restricted by the stairs' bulkhead and the roof eaves, making it a bit of an awkward space.
- A double-storey extension isn’t feasible, as it would cost more than the house is worth, but we could consider a single-storey extension.
- We also have a detached single garage that could potentially be converted.
I’d love to hear any ideas! How could we make an upstairs bathroom work without losing too much bedroom space? This house is giving me a headache!
Any ideas or advice would be much appreciated! 😊
Jonathan
Jonathan
Related Discussions
Help! How to modernise / increase curb appeal on my 1970s dormer house
Q
House layout - please share ideas
Q
Who can help come up with ideas to alter house layout?
Q
House / Extension layout ideas
Q