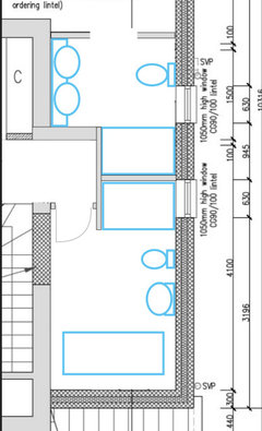
Hi everyone. We are currently building an extension on our house. The shell is going up and the roof will be going on in April. Now we are starting to think about planning our new bathrooms. The rooms are sized follows:
Ensuite - 1.5m long by 2m wide
Bathroom - 4m long by 2m wide
Our architect gave us an initial suggestion for a layout, but we want to start looking at other possibilities before we commit to what he suggested.
So we were wonderring if anyone has any thoughts you would like to share and also an recommendations of good suppliers in the Suffolk/Essex/Norfolk/Cambridgeshire area? Our builder is doing all the fitting.
Any input is greatly appreciated!
Thanks,
Toby
Jonathan
Toby BOriginal Author
Related Discussions
Bathroom layout advice please!
Q
Bathroom layout advice
Q
Bathroom layout advice please
Q
Family Bathroom Layout Advice
Q
Sam Potter