West Wittering, West Sussex
This replacement house, completed in 2014, looks out over West Wittering beach.
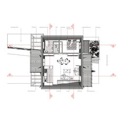
The house sits along the sea side located adjacent to Marine Drive West and is on a Site of Special Scientific Interest (SSSI).
The beach front properties along Marine Drive vary greatly in their scale and architectural style. The new building uses the familiar proportions and cute scale of beach huts which are unmistakably part of the British seaside, evoking a sense of nostalgia and fun. The strong, robust Ground Floor facade takes inspiration from the groynes and seawall.
The house sits along the sea side located adjacent to Marine Drive West and is on a Site of Special Scientific Interest (SSSI).
The beach front properties along Marine Drive vary greatly in their scale and architectural style. The new building uses the familiar proportions and cute scale of beach huts which are unmistakably part of the British seaside, evoking a sense of nostalgia and fun. The strong, robust Ground Floor facade takes inspiration from the groynes and seawall.
Project Year: 2014